1

Via Botticelli 61
Torino (TO)

Richiesta

7.500 €

planimetria

superficie

1650 m2

mappa

Location

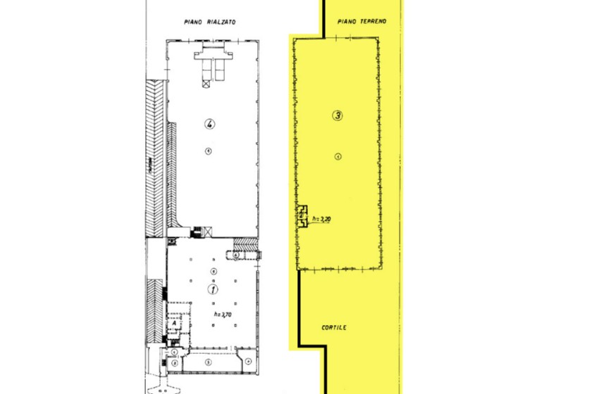
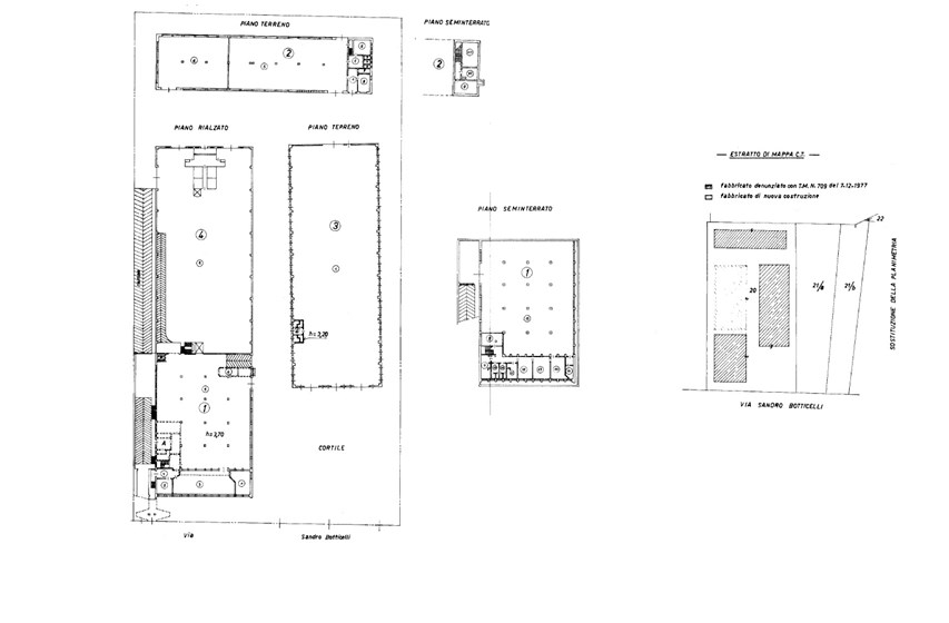
COMPLESSO INDUSTRIALE IN VIA BOTTICELLI 61 - 63 Il complesso è situato all’interno del quartiere Regio Parco - Barriera di Milano, area storicamente produttiva, oggi interessata da un importante processo di riqualificazione urbana. Il complesso di via Botticelli 61-63 si sviluppa su una superficie complessiva di oltre 10.000 mq, articolata in 4 fabbricati oltre aree di pertinenza. La locazione si riferisce a 1 unità – evidenziata nella planimetria - di cui una ha una superficie di ca. 1.650 mq coperti Il fabbricato ha un’area scoperta di pertinenza di circa 1200mq, ossia il piazzale antistante al fabbricato. Le altezze sono circa 5,2 m sotto trave e 7,2 m a tetto, con struttura a campata unica. Al fabbricato sono riservati 3 accessi carrai su un fronte di circa 30 m antistante via Botticelli che consentono una gestione efficiente dei flussi di ingresso ed un’importante visibilità dal fronte strada. L’impianto planimetrico regolare e la modularità degli spazi rendono i fabbricati estremamente versatili, adatti a funzioni produttive, artigianali, logistiche. La posizione risulta strategica grazie all’eccellente accessibilità sia verso il centro città, raggiungibile in circa 15 minuti, sia verso la tangenziale nord e l’accesso alla Torino-Milano. La zona è servita da numerose linee di trasporto pubblico, con fermate di autobus e tram a pochi metri e dalla stazione ferroviaria Torino Rebaudengo Fossata a circa 1 km. L’aeroporto di Torino-Caselle si trova a circa 20 minuti d’auto. Nel raggio di 600 m sorgono poli commerciali, logistici ed industriali con importanti realtà produttive ed insediamenti direzionali che confermano anche la natura terziaria e commerciale dell’area. La combinazione tra ottimi collegamenti, presenza di numerosi servizi e dinamiche di riqualificazione rende l’ubicazione particolarmente interessante per attività produttive, logistiche, terziarie e commerciali alla ricerca di spazi funzionali in un contesto urbano in evoluzione.

dettagli immobile

  • Piano: Piano terra
  • Numero Camere: 1
  • Numero Bagni: 2
  • Riscaldamento: Autonomo
  • Alimentazione riscaldamento: Gas
  • Categoria catastale: D/8
  • Classe Energetica: Immobile esente da certificazione energetica
  • Anno costruzione: 1960
  • Stato: Da ristrutturare
  • Altezza soffitto: 7,2 m
  • Altezza Sottotrave: 5,2 m
  • Passo carrabile:
  • Posti auto: 15