1

Corso Agnelli 66
Torino (TO)

Richiesta

Trattativa Riservata

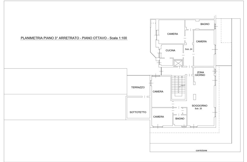
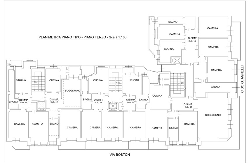
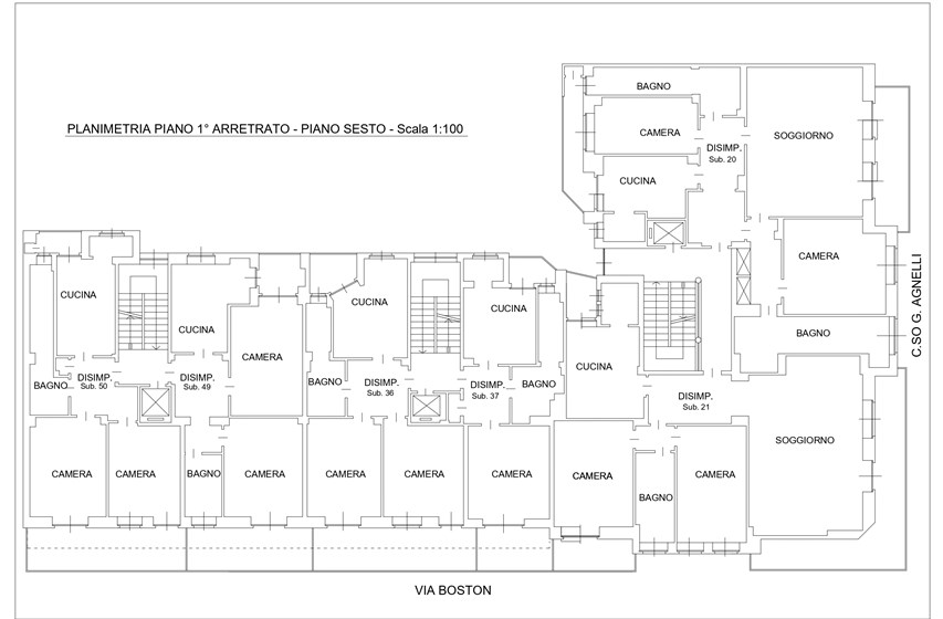
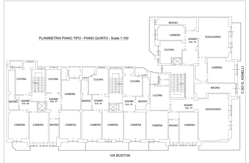
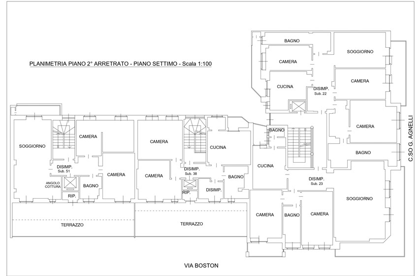
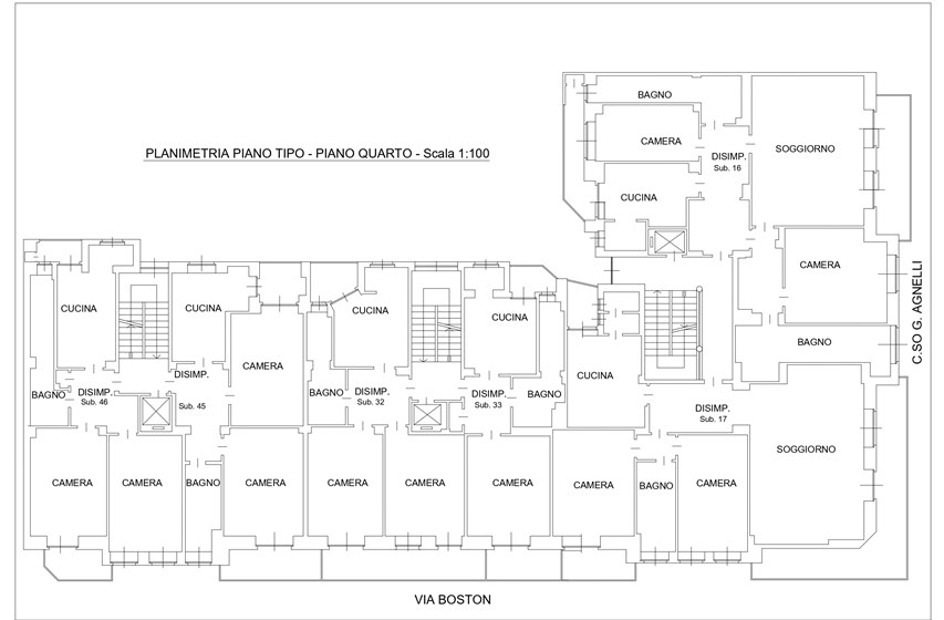
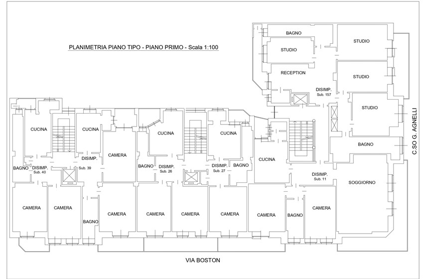
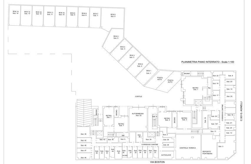
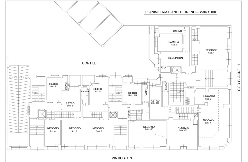
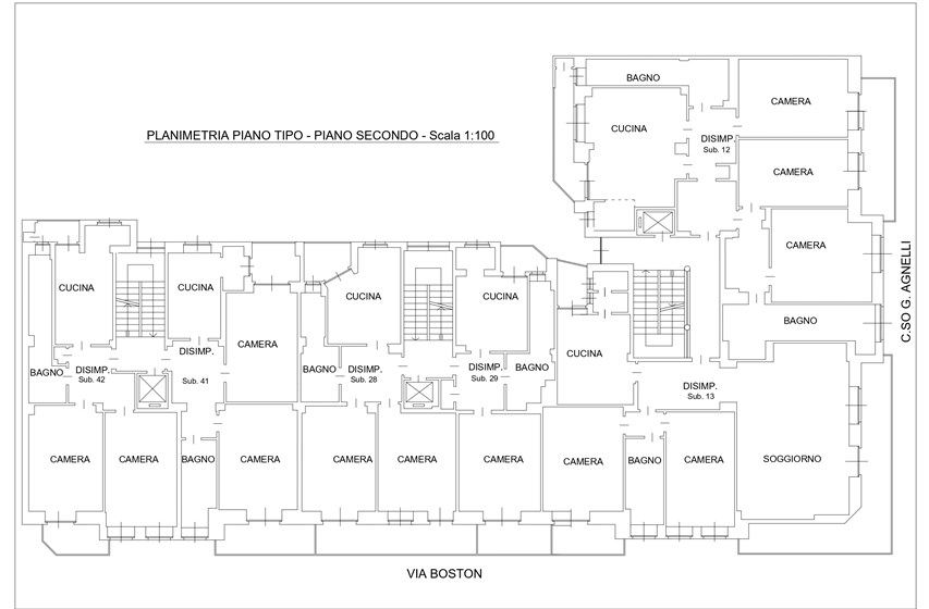
planimetria

superficie

4636 m2

mappa

Location

Il complesso è situato in Corso Agnelli 66, all’angolo con via Boston 2 e 4, nel cuore del quartiere Santa Rita. La zona è caratterizzata da un tessuto sia residenziale vivace e sicuro, sia commerciale e ricco di negozi di vicinato, scuole, supermercati e collegamenti pubblici che lo rendono particolarmente comodo e funzionale. Nelle immediate vicinanze si trovano alcuni dei poli più importanti della città: lo Stadio Olimpico Grande Torino e il Pala Alpitour distano appena 900m, mentre il polmone verde di Piazza d’Armi si raggiunge in soli 10 minuti di camminata. L’area ospita anche la Facoltà di Economia, situata a circa 800m. A completare il contesto, il mercato rionale di Corso Sebastopoli a meno di 10 minuti a piedi. La posizione offre inoltre collegamenti rapidi con il centro della città, raggiungibile in circa 15 minuti in auto o con i mezzi pubblici, mentre la vicinanza alle principali arterie stradali consente di spostarsi agevolmente anche verso le tangenziali e le uscite autostradali. L’edificio, realizzato negli anni ‘60, si sviluppa su otto piani sul fronte di Corso Agnelli e sette piani sul lato di Via Boston, distinguendosi per la sua posizione angolare di forte visibilità. La proprietà presenta una destinazione mista, con spazi a uso commerciale al piano terra e unità abitative ai piani superiori, soluzione che conferisce allo stabile grande versatilità d’impiego. Il complesso ospita unità caratterizzate da ambienti ampi e luminosi di diverse metrature, con la presenza di pertinenze quali cantine e box auto. Gli appartamenti dispongono di balconi generosi, alcuni con doppio affaccio, che assicurano un’illuminazione naturale costante e viste aperte su due lati. Recentemente sono stati realizzati interventi di manutenzione straordinaria che hanno migliorato la qualità e l’efficienza dello stabile: installazione di serramenti nuovi, sostituzione dei portoncini blindati, completo rifacimento dei vani scala e aggiornamento dell’ascensore.

dettagli immobile

  • Libero: No
  • Immobile a reddito: Si
  • Riscaldamento: Centralizzato
  • Classe Energetica: In attesa di certificazione
  • Ascensore: Si
  • Box auto: Singolo
  • Anno costruzione: 1960
  • Classe immobile: Signorile
  • Stato: Buono / Abitabile
  • Lati liberi: Tre
  • Esposizione: Doppia
  • Balcone: Si
  • Terrazzo: Si
  • Cantina: Si