1

Corso Raffaello 17
Torino (TO)

Richiesta

1.350.000 €

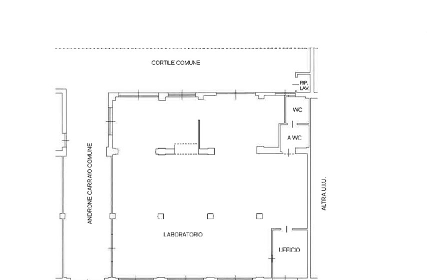
planimetria

superficie

1000 m2

mappa

Location

Nel cuore di Torino, in posizione strategica e ben servita adiacente al parco del Valentino, alle facoltà universitarie e alla rete della metropolitana, proponiamo in vendita un interessante complesso immobiliare situato in Corso Raffaello 17, composto da più unità a diversa destinazione d’uso, in parte locate e in parte libere per complessivi 1.000 mq coperti oltre a cortile di proprietà e terrazzi. La proprietà si distingue per la combinazione equilibrata tra residenziale e commerciale, rappresentando un’opportunità ideale per investitori alla ricerca di un asset diversificato e con rendita in essere. Il complesso comprende: Loft residenziale di circa 80 mq, composto da ingresso indipendente al piano strada, al piano primo collegato da ascensore e scala interna grande open space living, cucina e bagno, al piano soppalcato zona notte con armadiatura. Completa la proprietà un box auto privato attiguo all’immobile. Soluzione moderna e funzionale, adatta sia come abitazione che come ufficio di design/rappresentanza. Locale commerciale di circa 200 mq al piano terra, attualmente adibito ad officina auto, con accesso diretto e buona visibilità garantita da tre ampie aperture su strada a tutta altezza. L’immobile è locato. Ampio locale ad uso palestra di circa 600 mq, con accesso dal piano strada e con grande vetrina, disposta su due livelli, piano terreno e piano primo, grande terrazzo. Completa la proprietà la zona servizi e spogliatoi. Ulteriori locali, situati nell’interno cortile (di proprietà esclusiva) inseriti in una manica interna del fabbricato fronte strada, in parte locati all’adiacente supermercato Carrefour e in parte liberi da trasformare per adibirli ad uffici o residenziale. Per informazioni dettagliate su rendita annua, condizioni contrattuali e documentazione completa, è possibile fissare un appuntamento presso i nostri uffici.

dettagli immobile

  • Locali (oltre zona giorno, cucina e servizi): 20
  • Piano: Piano terra su più livelli
  • Riscaldamento: Autonomo
  • Alimentazione riscaldamento: Metano
  • Classe Energetica: Legge 90/2013 - G
  • Indice di Prestazione Energetica: 131,5 kWh/mq anno
  • Anno costruzione: 1930
  • Classe immobile: Media
  • Stato: Buono / Abitabile
  • Lati liberi: Due, paralleli
  • Esposizione: Doppia
  • Infissi esterni: Vetro / Metallo