1

Piazza Castello 113 - mq 200
Torino (TO)

Richiesta

6.100 €

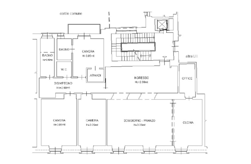
planimetria

superficie

200 m2

mappa

Location

Piazza Castello 113 In posizione esclusiva, nel cuore del centro di Torino, proponiamo in locazione elegante appartamento di circa 200 mq, sito al terzo piano di uno stabile signorile con servizio di portineria. L’unità, si compone di: ingresso, ampio soggiorno con affaccio su via Roma, cucina abitabile con zona dispensa e lavanderia, camera da letto padronale dotata di cabina armadio interna e bagno en suite oltre a balcone con affaccio su interno cortile, ulteriori due camere dotate di armadiature, e due bagni. L’appartamento è dotato di moderni sistemi di domotica per la gestione integrata dell’abitazione, tapparelle elettriche, videocitofono. Il riscaldamento e il raffrescamento sono centralizzati con gestione autonoma. Il condominio è inoltre dotato di una palestra attrezzata ad uso esclusivo dei residenti. Il tipo di contratto richiesto è ad uso abitativo con durata di 4+4 anni rinnovabili. Il pagamento del canone di locazione richiesto è mensile anticipato con bonifico bancario, la cauzione sarà pari a tre mensilità.

dettagli immobile

  • Locali (oltre zona giorno, cucina e servizi): 3
  • Piano: 3
  • Numero Camere: 3
  • Numero Bagni: 3
  • Spese condominiali mensili: 500 €
  • Riscaldamento: Centralizzato
  • Spese riscaldamento annuali: 2700 €
  • Impianto di climatizzazione: Centralizzato
  • Tipo impianto climatizzazione: Freddo / Caldo
  • Classe Energetica: Legge 90/2013 - A3
  • Indice di Prestazione Energetica: 30,59 kWh/mq anno
  • Tipo contratto: 4+4
  • Ascensore: Si
  • Anno costruzione: 1850
  • Classe immobile: Di lusso
  • Stato: Ottimo / Ristrutturato
  • Lati liberi: Due, paralleli
  • Esposizione: Doppia
  • Arredamento: Parzialmente arredato
  • Cucina: Abitabile
  • Balcone: Si
  • Cantina: Si
  • Portineria: Intera giornata
  • Infissi esterni: Doppio Vetro / Legno
  • Porta blindata: Si
  • Armadi a muro: Si
  • Fibra ottica: Si
  • Videocitofono: Si
  • Cancello elettrico: Si