1

Sant' Agostino 1 piano 4-5
Torino (TO)

Richiesta

2.800 €

planimetria

superficie

125 m2

mappa

Video

Location

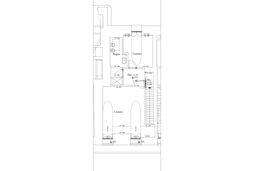
Via Sant’Agostino 1 Nel centro storico di Torino, nei pressi di via Garibaldi, proponiamo in locazione elegante appartamento di circa 125 mq disposto su due livelli (quarto e quinto piano), inserito in un palazzo d’epoca oggetto di completa ristrutturazione. L’immobile, finemente arredato e ristrutturato, si compone di ingresso, cucina abitabile con accesso a un ampio balcone con affaccio su interno cortile, bagno di servizio e soggiorno. Una scala interna conduce al piano superiore dove si sviluppa la zona notte, composta da una camera master con armadiature, una seconda camera anch’essa dotata di armadiature, e un secondo bagno. Completa la proprietà una cantina al piano interrato. Il riscaldamento e la produzione di acqua calda sono centralizzati con gestione autonoma, ed è presente impianto di condizionamento. Possibilità di box auto a parte con canone annuale a €3.000,00 oltre spese. Il tipo di contratto richiesto è ad uso abitativo con durata di 4+4 anni rinnovabili. Il pagamento del canone di locazione richiesto è mensile anticipato con bonifico bancario, la cauzione sarà pari a tre mensilità.

dettagli immobile

  • Locali (oltre zona giorno, cucina e servizi): 2
  • Piano: Su più livelli
  • Numero Camere: 2
  • Numero Bagni: 2
  • Libero: Si
  • Spese condominiali mensili: 200 €
  • Riscaldamento: Centralizzato
  • Spese riscaldamento annuali: 1200 €
  • Tipo impianto riscaldamento: Ad aria
  • Impianto di climatizzazione: Centralizzato
  • Tipo impianto climatizzazione: Freddo / Caldo
  • Classe Energetica: Legge 90/2013 - A1
  • Indice di Prestazione Energetica: ≥ 3,51 kWh/m³ anno
  • Tipo contratto: 4+4
  • Ascensore: Si
  • Box auto: Singolo
  • Richiesta Box: 250 €
  • Anno costruzione: 1800
  • Classe immobile: Di lusso
  • Stato: Ottimo / Ristrutturato
  • Lati liberi: Due, paralleli
  • Arredamento: Arredato
  • Cucina: Abitabile
  • Balcone: Si
  • Cantina: Si
  • Infissi esterni: Doppio Vetro / Legno
  • Porta blindata: Si
  • Videocitofono: Si
  • Fibra ottica: Si
  • Armadi a muro: Si