1

Via Buenos Aires 84
Torino (TO)

Richiesta

70.000 €

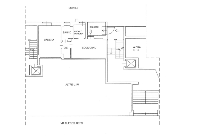
planimetria

superficie

50 m2

mappa

Location

Si propone in vendita bilocale piano rialzato interno cortile, con balconcino, ampio living, cucinotto finestrato, bagno finestrato, angolo lavanderia e camera da letto. L’appartamento è da ristrutturare salvo bagno e cucinotto appena rifatti, ma il basso costo (con margine di parziale trattabilità) e le basse spese condominiali lo rendono un immobile interessante sia come prima abitazione per un single o un coppia sia come investimento permessa a reddito visto l’andamento attuale dei canoni di affitto. La posizione nel quartiere di Santa Rita con comodità a ogni servizio, attività commerciale, polo universitario, stadio olimpico, mercato rionale, trasporto pubblico e strade a veloce scorrimento lo rendono particolarmente comodo alla vita quotidiana. Si segnala inoltre la facilità di parcheggio, che è gratuito, e la silenziosità pur trattandosi di un piano rialzato, vista la posizione interno cortile. Le spese di riscaldamento non sono ad ora quantificabili in quanto l’appartamento è vuoto da numerosi anni e i caloriferi e gli infissi necessitano di sostituzione, ma le dimensioni ridotte e il miglioramento della classe energetica legata alla ristrutturazione renderanno le spese contenute.

dettagli immobile

  • Locali (oltre zona giorno, cucina e servizi): 1
  • Piano: Piano terra
  • Numero Camere: 1
  • Numero Bagni: 1
  • Spese condominiali mensili: 20 €
  • Riscaldamento: Autonomo
  • Alimentazione riscaldamento: Teleriscaldamento
  • Categoria catastale: A/3
  • Rendita catastale: 473 €
  • Classe Energetica: Legge 90/2013 - E
  • Indice di Prestazione Energetica: 115,73 kWh/mq anno
  • Ascensore: Si
  • Anno costruzione: 1961
  • Classe immobile: Media
  • Stato: Da ristrutturare
  • Lati liberi: Uno
  • Esposizione: Interna
  • Cucina: Cucinotto
  • Balcone: Si
  • Cantina: Si
  • Infissi esterni: Vetro / Legno