1

Via Garibaldi 18
Chieri (TO)

Richiesta

340.000 €

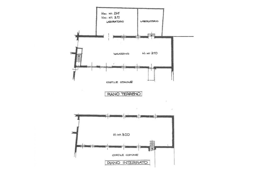
planimetria

superficie

406 m2

mappa

Location

Casa di corte da ristrutturare in centro a Chieri, a due passi da Piazza Cavour. Una soluzione abitativa unica che combina la tranquillità di una residenza riservata con la comodità di avere tutti i servizi, negozi e attività a portata di mano. L’immobile, edificato nella prima decade del 900, con ingresso pedonale e carraio da interno cortile, ad oggi si sviluppa come segue: Piano Terreno: magazzino con area laboratorio per un totale di 216 Mq. e corte privata comoda per parcheggiare. Piano Primo: appartamento con ingresso su ampio vano, soggiorno, sala, studio, cucina, due camere da letto, grande disimpegno, bagno e due balconi; secondo appartamento con ingresso su soggiorno, sala pranzo, cucina, bagno, due balconi; la superficie abitabile è pari a 198 Mq. Piano Interrato: suggestiva cantina con voltini a botte per un totale di 163 Mq. Possibilità di creare un giardino privato di circa 150 Mq. Le ampie metrature consentono di realizzare comodamente tre unità abitative. L’immobile, molto ben esposto e luminoso, è caratterizzato da una suggestiva atmosfera d’altri tempi; l’ideale per chi cerca un’oasi di pace e riservatezza senza rinunciare alla vitalità del centro città.

dettagli immobile

  • Locali (oltre zona giorno, cucina e servizi): 6
  • Piano: Su più livelli
  • Numero Camere: 3
  • Numero Bagni: 2
  • Libero: Si
  • Disponibile da: Giugno 2026
  • Riscaldamento: Autonomo
  • Tipo impianto riscaldamento: A radiatori
  • Alimentazione riscaldamento: Metano
  • Categoria catastale: A/4
  • Rendita catastale: 600 €
  • Classe Energetica: Legge 90/2013 - D
  • Indice di Prestazione Energetica: 112,90 kWh/m² anno
  • Box auto: Singolo
  • Anno costruzione: 1915
  • Classe immobile: Economica
  • Stato: Da ristrutturare
  • Lati liberi: Due, paralleli
  • Esposizione: Doppia
  • Cucina: Abitabile
  • Giardino: Privato
  • Balcone: Si
  • Cantina: Si
  • Infissi esterni: Triplo Vetro / PVC
  • Camino / caminetto: Si
  • Cancello elettrico: Si