1

Via Lamarmora 9 - mq 215
Torino (TO)

Richiesta

2.350 €

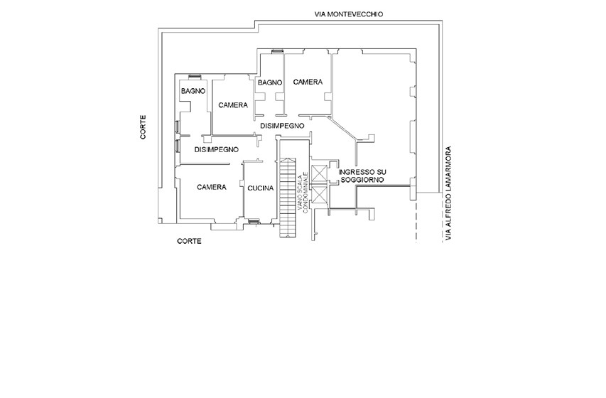
planimetria

superficie

215 m2

mappa

Location

In un elegante palazzo, dotato di servizio di portineria e doppi ascensori, proponiamo in locazione un attico panoramico situato al sesto ed ultimo piano. La proprietà, ubicata in una delle zone più ricercate della città, tra corso Stati Uniti e via Montevecchio, precisamente in via Lamarmora 9, si presenta in ottime condizioni di manutenzione ed è caratterizzata da ambienti luminosi e ben distribuiti. L’appartamento è composto da ingresso su ampio e luminoso soggiorno, cucina, disimpegno che conduce alla camera padronale con cabina armadi e bagno, due ulteriori camere da letto e secondo bagno. Completano la proprietà una cantina al piano interrato e la possibilità di box auto doppio, disponibile a € 150,00 mensili Tutti gli ambienti godono di accesso a uno terrazzo perimetrale, che circonda l’intero appartamento con suggestivi affacci e nel punto di maggiore ampiezza il terrazzo è impreziosito da un elegante pergolato in legno. Le finiture interne comprendono pavimenti in parquet, mentre i servizi sono rifiniti con ceramiche. L’immobile è inoltre dotato di impianto di climatizzazione autonomo e di infissi elettrificati con doppi vetri, che assicurano un eccellente isolamento termoacustico. Una soluzione esclusiva, ideale per chi desidera vivere in un attico, con ampi spazi esterni e in una posizione centrale e prestigiosa. Il contratto di locazione potrà essere ad uso abitativo con durata di 4 anni rinnovabili. Il pagamento del canone di locazione richiesto è mensile anticipato con bonifico bancario, la cauzione sarà pari a tre mensilità

dettagli immobile

  • Locali (oltre zona giorno, cucina e servizi): 3
  • Piano: 6
  • Numero Camere: 3
  • Numero Bagni: 2
  • Spese condominiali mensili: 290 €
  • Riscaldamento: Centralizzato
  • Spese riscaldamento annuali: 1700 €
  • Alimentazione riscaldamento: Metano
  • Impianto di climatizzazione: Autonomo
  • Tipo impianto climatizzazione: Freddo / Caldo
  • Categoria catastale: A/1
  • Rendita catastale: 4183 €
  • Classe Energetica: Legge 90/2013 - F
  • Indice di Prestazione Energetica: 204,14 kWh/mq anno
  • Tipo contratto: 4+4
  • Ascensore: Si
  • Box auto: Doppio
  • Richiesta Box: Compreso nel prezzo
  • Anno costruzione: 1960
  • Classe immobile: Signorile
  • Stato: Buono / Abitabile
  • Lati liberi: Quattro
  • Esposizione: Doppia
  • Cucina: Abitabile
  • Balcone: Si
  • Terrazzo: Si
  • Armadi a muro: Si
  • Cantina: Si
  • Porta blindata: Si
  • Infissi esterni: Doppio Vetro / Legno
  • Cancello elettrico: Si