1

Viale Pasubio 16
Milano (MI)

Richiesta

2.200 €

planimetria

superficie

90 m2

mappa

Location

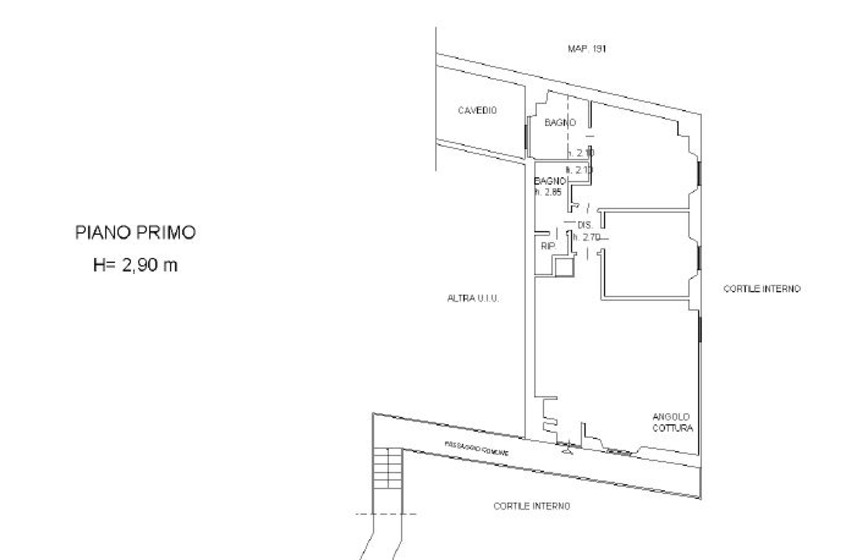
AMPIO TRILOCALE ARREDATO Milano, Viale Pasubio n° 16, proponiamo in locazione elegante appartamento di mq. 90 circa, situato al piano primo di un suggestivo complesso degli anni ’30, dove ogni angolo racconta una storia. L’immobile completamente arredato con cura e dotato di finiture di qualità, si presenta con una distribuzione funzionale degli spazi così composta: ingresso su ampio e luminoso living con cucina a vista, moderna e completa di ogni elettrodomestico, camera matrimoniale con bagno en suite, seconda camera e secondo bagno completo con ripostiglio/lavanderia. Riscaldamento autonomo con controllo da remoto, per accendere o regolare il riscaldamento prima di arrivare a casa. Porta blindata con apertura e chiusura tramite smartphone. Impianto di climatizzazione autonoma. Servizio di portineria mezza giornata. L’appartamento offre comfort e praticità con ambienti ben illuminati e una piacevole atmosfera grazie all’incantevole contesto delle case di ringhiera milanesi, situate in un silenzioso e riservato cortile interno, lontano dai rumori della città, dove la storia si intreccia con la serenità di un ambiente autentico e suggestivo, perfetto per chi cerca un rifugio esclusivo nel cuore di Milano. La zona è ottimamente servita da negozi, bar, ristoranti, farmacie e supermercati. Numerosi mezzi pubblici di superficie quali tram, autobus e a soli 600 mt. si trova la Stazione Ferroviaria di Porta Garibaldi e la linea della Metro M2-M5. L’immobile è disponibile da subito, solo referenziati!

dettagli immobile

  • Locali (oltre zona giorno, cucina e servizi): 2
  • Piano:
  • Numero Camere: 2
  • Numero Bagni: 2
  • Spese condominiali mensili: 100
  • Riscaldamento: Autonomo
  • Alimentazione riscaldamento: Metano
  • Impianto di climatizzazione: Autonomo
  • Tipo impianto climatizzazione: Freddo / Caldo
  • Categoria catastale: A/4
  • Rendita catastale: 475,14
  • Classe Energetica: Legge 90/2013 - E
  • Indice di Prestazione Energetica: 116.30
  • Tipo contratto: 3+2
  • Ascensore: Si
  • Anno costruzione: 1930
  • Classe immobile: Media
  • Stato: Ottimo / Ristrutturato
  • Lati liberi: Due, ad angolo
  • Esposizione: Interna
  • Arredamento: Arredato
  • Cucina: A vista
  • Balcone: No
  • Porta blindata: Si
  • Camino / caminetto: Si